物件情報【最終1区画】宅地分譲[世田谷区下馬3丁目]
BUILDING LAND[現地写真]
- ◎【フラットアプローチ】『学芸大学』駅徒歩16分
- ◎第1種低層エリア・緑豊かで閑静
- ◎敷地41坪超・幅員5.98mの公道接道
- ◎スーパー徒歩5分他、近隣に生活施設充実
LANDSCAPE[区画図]
おかげさまで残り1区画!
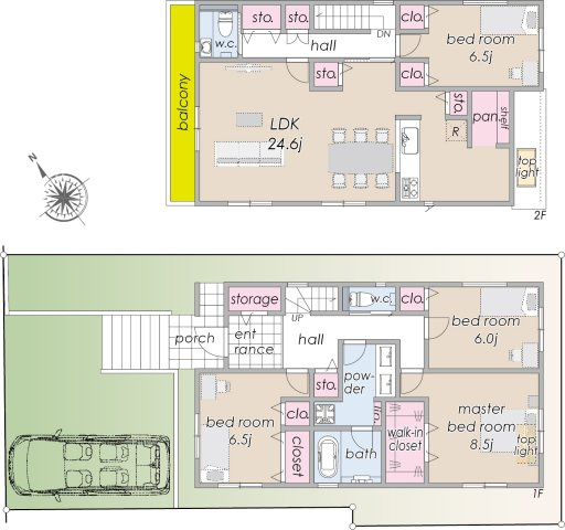
PLAN[参考プラン図]
- 低層住居エリア
- 眺望良好
- 陽当り良好
- 閑静な住宅地
- 建築条件なし
- 駅まで平坦
- スーパー 徒歩10分以内
- 小学校 徒歩10分以内
- 緑豊かな住宅地
- 周辺交通量少なめ
- 2駅以上利用可
- 2路線以上利用可
LOCATION[周辺環境]
-
総合病院
加賀クリニック
約60m [徒歩1分]
-
コンビニエンスストア
ローソン 下馬三丁目店
約110m [徒歩2分]
-
ドラッグストア
薬局トモズ 野沢店
約200m [徒歩3分]
-
保育園
下馬鳩ぽっぽ保育園
約280m [徒歩4分]
-
公園
下馬中央公園
約320m [徒歩4分]
-
小学校
世田谷区立中丸小学校
約350m [徒歩5分]
-
スーパー
まいばすけっと 下馬3丁目店
約360m [徒歩5分]
-
公民館
野沢地区会館
約420m [徒歩6分]
-
郵便局
世田谷野沢郵便局
約470m [徒歩6分]
-
中学校
世田谷区立駒留中学校
約520m [徒歩7分]
-
スーパー
サミットストア 野沢龍雲寺店
約660m [徒歩9分]
-
幼稚園
アゼィリア幼稚園
約800m [徒歩10分]
-
公園
碑文谷公園・碑文谷体育館
約1110m [徒歩14分]
-
駅
三軒茶屋駅
約1480m [徒歩19分]
OUTLINE[物件概要]
- 区画数
- 全2区画 / 今回販売1区画
- 土地権利
- 所有権
- 現 況
-
A区画:
更地
- 地 目
- 宅地
- 都市計画
- 市街化区域
- 用途地域
- 第一種低層住居専用地域
- 防火指定
- 準防火地域
- 建ぺい率
-
A区画:
50%
- 容積率
-
A区画:
150%
- 土地面積
-
A区画:
145.00㎡(43.86坪)
- 引渡し
-
A区画:
即時
- 接 道
-
A区画:
北西側 約 5.9m 公道
- 設 備
-
-
公営水道、電気、都市ガス、公共下水
- 販売価格
-
A区画:
18,900万円
- 備 考
-
高度地区/第1種高度地区
B区画:敷地面積に路地状部分約51㎡含む
- 取引形態
- 売主
※現況と相違する場合は現況を優先させていただきます。
※距離表示については地図上の概測距離を、徒歩分表示については80mを1分として算出し、端数切り上げしたものです。
※『New』の表示は、掲載された日から1週間表示されます。
※『価格改定』の表示は、物件価格が変更された日から2週間表示されます。
※完成予想図(CG)は図面を基に描き起こしたもので、実際とは多少異なる場合があります。予めご了承ください。
※建築の際、地盤調査・地盤改良・ライフラインの引込等にかかる費用は、買主様の負担となります。
※掲載の区画図は、実測図ではありません。
※掲載の参考間取図は、土地購入の際の設計参考に資するための一例です。
※掲載の参考間取図の採用および、変更は自由に可能です。
※間取図内およびその完成予想図等のすべての家具・家電・車両は、参考イメージのための配置例であり、販売価格には含まれません。
※掲載の参考間取図の建物価格については、特定の建築請負会社によるもので、当該建築請負会社以外で建てた場合、同様のものが同価格で建てられるとは限りません。また建築請負会社を特定するものではありません。
※万一売却済の場合はご容赦くださいませ。
タカマツハウス株式会社
東京都渋谷区広尾1丁目1-39 恵比寿プライムスクエアタワー15F TEL:03-3486-1134
国土交通大臣 (2) 第9752号
取引条件有効期限/2025年12月10日
更新日:2025年11月10日 次回更新予定日:2025年11月24日
ABOUT US弊社について
タカマツハウスは、髙松グループが新規に手掛ける木造
戸建住宅事業を担う会社として、2019年4月に創業しま
した。用地仕入れに強みを持たせた事業展開により、資
産価値の高い土地や建物を提供し、設立からわずか3年で
売上高191億円と急成長を実現しました。

