物件情報新築分譲[ミラクラス牛久保東]
FACADE DESIGN[外 観]
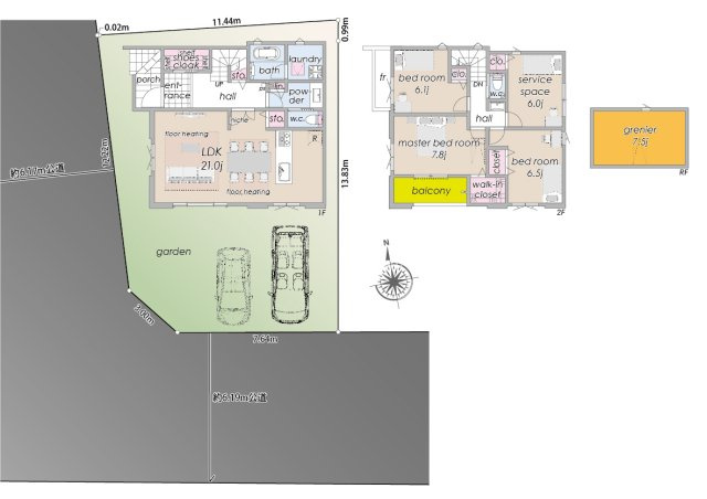
- ◎南小庭に面した明るいリビング・ダイニング
- ◎延床36坪の2階建て(全室6帖以上)・カースペース並列2台
PLAN&PHOTO[間取図&写真(画像)]
FEATURES[設備・仕様]
-

浄水器内蔵
ハンズフリー水栓 -

24時間熱交換
第一種換気システム -

タンクレストイレ
-

南向きバルコニー
-

ガス式床暖房
-

浄水器内蔵
シャワー混合水栓 -

食器洗浄乾燥機付き
-

屋外コンセント
EV・PHEV充電用 -

浴室換気乾燥機付き
-

シャワートイレ
-

宅配ボックス
-

玄関ドア
電子キーシステム
- 建設住宅性能評価付
- デザイナーズ
- 駐車2台可
- ワイドバルコニー
- 駐車2台並列可
- LD収納
- 庭
- インナーバルコニー
- オープンキッチン
- ウォークインクロゼット
- ウォークインシューズクロゼット
- 床下収納
- 造作カウンター
- カードキー
- エアコン
LOCATION[周辺環境]
-
市役所・区役所
北山田地区センター
約1085m [徒歩14分]
-
駅
センター北駅
約1467m [徒歩19分]
-
ドラッグストア
Fit Care DEPOT北山田店
約1669m [徒歩21分]
-
幼稚園
認定こども園やまゆりキッズ横浜みずほ幼稚園
約1819m [徒歩23分]
-
中学校
横浜市立東山田中学校
約1984m [徒歩25分]
-
保育園
アスク北山田保育園
約1990m [徒歩25分]
-
ホームセンター
コーナン 港北ニュータウン店
約2074m [徒歩26分]
-
小学校
横浜市立北山田小学校
約2243m [徒歩29分]
-
スーパー
ヨークマート 港北店
約2301m [徒歩29分]
-
郵便局
横浜すみれが丘郵便局
約2385m [徒歩30分]
-
総合病院
小林クリニック
約2386m [徒歩30分]
-
公園
すみれが丘公園
約2412m [徒歩31分]
-
コンビニエンスストア
セブンイレブン 横浜すみれが丘店
約2797m [徒歩35分]
OUTLINE[物件概要]
- 棟 数
- 全1棟
- 交 通
-
横浜市営地下鉄ブルーライン「センター北」駅 徒歩15分
横浜市営地下鉄グリーンライン「北山田」駅 徒歩16分
横浜市営地下鉄ブルーライン「センター南」駅 徒歩22分
- 土地権利
- 所有権
- 現 況
-
完成済
- 地 目
- 宅地
- 都市計画
- 市街化区域
- 用途地域
- 第一種低層住居専用地域
- 建ぺい率
-
40%
- 容積率
-
80%
- 土地面積
-
150.98㎡(45.67坪)
- 建物面積
-
120.48㎡(36.44坪)
- 構 造
- 木造
- 完 成
-
2025年9月
- 引渡し
-
即入居可
- 接 道
-
南側 約 6.1m 公道、西側 約 6.1m 公道
- 設 備
-
-
公営水道、電気、都市ガス、公共下水
- 販売価格
-
13,300万円(税込)
- 建築確認番号
-
第KBI-YKH25-10-0979号
- 備 考
-
景観法、宅地造成及び特定盛土等規制法、法第22条区域、緑化地域、港北ニュータウン街づくり協議地区
- 取引形態
- 売主
※現況と相違する場合は現況を優先させていただきます。
※距離表示については地図上の概測距離を、徒歩分表示については80mを1分として算出し、端数切り上げしたものです。
※『New』の表示は、掲載された日から1週間表示されます。
※『価格改定』の表示は、物件価格が変更された日から2週間表示されます。
※間取図内およびその完成予想図等のすべての家具・家電・車両は、参考イメージのための配置例であり、販売価格には含まれません。
※すべての家電・家具・照明器具等が搬入・設置できない場合がありますので、必ず現地および平面図・立面図等をもってご確認ください。
※万一売却済の場合はご容赦くださいませ。
タカマツハウス株式会社
東京都渋谷区広尾1丁目1-39 恵比寿プライムスクエアタワー15F TEL:03-3486-1134
国土交通大臣 (2) 第9752号
取引条件有効期限/2025年12月10日
更新日:2025年11月10日 次回更新予定日:2025年11月24日
ABOUT US弊社について
タカマツハウスは、髙松グループが新規に手掛ける木造
戸建住宅事業を担う会社として、2019年4月に創業しま
した。用地仕入れに強みを持たせた事業展開により、資
産価値の高い土地や建物を提供し、設立からわずか3年で
売上高191億円と急成長を実現しました。

