物件情報新築分譲[ミラクラス弥生町]
FACADE DESIGN[外 観]
- ◎『中野富士見町』駅徒歩7分
- ◎建物39坪
- ◎ZEH水準の省エネ住宅
- ◎LDK20帖/天井吹抜け・床暖房2面
- ◎EV車充電用屋外電源付き車庫1台分
LANDSCAPE[区画図]
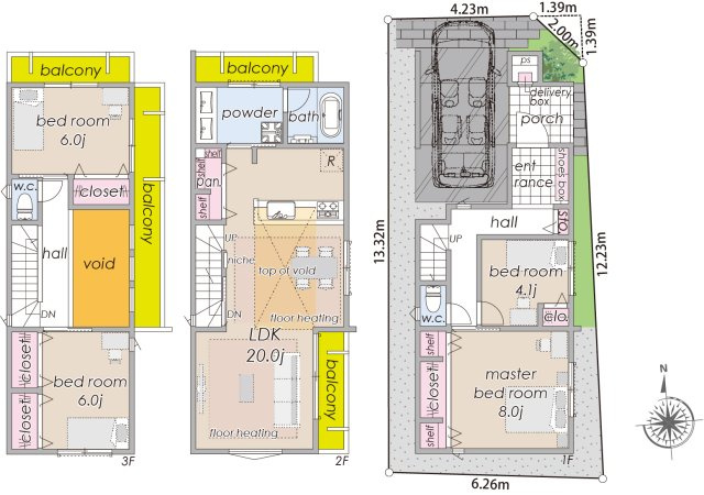
PLAN&PHOTO[間取図&写真(画像)]
A号棟
●耐震等級2/避難所になる学校や病院と同等強度
●ZEH水準の省エネ住宅/住宅ローン控除優遇有り
■LDK20.0帖/天井吹抜けで開放的かつ、高窓付きで陽当り良好
■バルコニーに面したリビング・床暖房2面
■直接バルコニーへ繋がる2way洗面室で家事動線良好
■EV車充電用電源設備付きビルトインガレージ1台分
FEATURES[設備・仕様]
-

浄水器内蔵
ハンズフリー水栓 -

洗面ダブルボウル
-

ガス式床暖房
-

食器洗浄乾燥機付き
-

屋外コンセント
EV・PHEV充電用 -

浴室換気乾燥機付き
-

シャワートイレ
-

宅配ボックス
-

玄関ドア
電子キーシステム -

システムキッチン
-

24時間
換気システム -

三面鏡
- 24時間緊急通報システム
- ビルトガレージ
- 建設住宅性能評価付
- デザイナーズ
- 天井高2.5m以上
- 2WAY洗面室
- 2面バルコニー
- 3面バルコニー
- オープンキッチン
- 吹抜け
- パントリー
- カードキー
- エアコン
- 対面式キッチン
- カウンターキッチン
LOCATION[周辺環境]
-
保育園
中野区立弥生保育園
約230m [徒歩3分]
-
スーパー
まいばすけっと 中野弥生町5丁目店
約240m [徒歩3分]
-
コンビニエンスストア
セブンイレブン 中野弥生町5丁目店
約240m [徒歩3分]
-
公園
弥生公園
約240m [徒歩3分]
-
ドラッグストア
スギ薬局 南台三丁目店
約290m [徒歩4分]
-
小学校
中野区立みなみの小学校
約310m [徒歩4分]
-
図書館
中野区立南台図書館
約400m [徒歩5分]
-
郵便局
中野南台二郵便局
約400m [徒歩5分]
-
スーパー
ライフ南台店
約450m [徒歩6分]
-
総合病院
富士見クリニック
約480m [徒歩6分]
-
幼稚園
こまどり幼稚園
約640m [徒歩8分]
-
中学校
中野区立南中野中学校
約790m [徒歩10分]
-
駅
笹塚駅
約1840m [徒歩23分]
OUTLINE[物件概要]
- 棟 数
- 全2棟 / 今回販売1棟
- 土地権利
- 所有権
- 現 況
-
A号棟:
建築中
- 地 目
- 宅地
- 都市計画
- 市街化区域
- 用途地域
- 第一種低層住居専用地域
- 防火指定
- 準防火地域
- 建ぺい率
-
A号棟:
60%
- 容積率
-
A号棟:
150%
- 土地面積
-
A号棟:
80.15㎡(24.24坪)
- 建物面積
-
A号棟:
129.17㎡(39.07坪)
- 構 造
- 木造
- 完 成
-
A号棟:
2026年2月完成予定
- 引渡し
-
A号棟:
2026年4月中旬入居予定
- 接 道
-
A号棟:
北側 約 5.0m 公道、東側 約 4.5m 公道
- 設 備
-
-
公営水道、電気、都市ガス、公共下水
- 販売価格
-
A号棟:
12,780万円(税込)
- 建築確認番号
-
A号棟:
第25UDI1S建02791号
- 備 考
-
宅地造成及び特定盛土等規制法、第1種高度地区、A号棟:土地面積に隅切部分0.97㎡含
建物面積に車庫部分(A:12.83㎡)含む
- 取引形態
- 売主
※現況と相違する場合は現況を優先させていただきます。
※距離表示については地図上の概測距離を、徒歩分表示については80mを1分として算出し、端数切り上げしたものです。
※『New』の表示は、掲載された日から1週間表示されます。
※『価格改定』の表示は、物件価格が変更された日から2週間表示されます。
※完成予想図(CG)は図面を基に描き起こしたもので、実際とは多少異なる場合があります。予めご了承ください。
※掲載の区画図は、実測図ではありません。
※間取図内およびその完成予想図等のすべての家具・家電・車両は、参考イメージのための配置例であり、販売価格には含まれません。
※すべての家電・家具・照明器具等が搬入・設置できない場合がありますので、必ず現地および平面図・立面図等をもってご確認ください。
※万一売却済の場合はご容赦くださいませ。
タカマツハウス株式会社
東京都渋谷区広尾1丁目1-39 恵比寿プライムスクエアタワー15F TEL:03-3486-1134
国土交通大臣 (2) 第9752号
取引条件有効期限/2026年01月07日
更新日:2025年12月08日 次回更新予定日:2025年12月22日
ABOUT US弊社について
タカマツハウスは、髙松グループが新規に手掛ける木造
戸建住宅事業を担う会社として、2019年4月に創業しま
した。用地仕入れに強みを持たせた事業展開により、資
産価値の高い土地や建物を提供し、設立からわずか3年で
売上高191億円と急成長を実現しました。

